
Agenda
Lane Cove Local Planning Panel Meeting
29 October 2025

Notice of Meeting
Dear Panel Members,
Notice is given of the Lane Cove Local Planning Panel Meeting, to be held in the Council Chambers on Wednesday 29 October 2025 commencing at 5pm. The business to be transacted at the meeting is included in this business paper.
Yours faithfully

Louise Kerr
Lane Cove Local Planning Panel Meeting Procedures
The Lane Cove Local Planning Panel (LCLPP) meeting will be chaired by Mr Carl Scully. The meetings and other procedures of the Panel will be undertaken in accordance with any guidelines issued by the General Manager.
The order of business is listed in the Agenda on the next page. That order will be followed unless the Panel resolves to modify the order at the meeting. This may occur for example where the members of the public in attendance are interested in specific items on the agenda.
Members of the public may address the Panel for a maximum of 3 minutes. All persons wishing to address the Panel must register prior to the meeting by contacting Council’s Office Manager – Environmental Services on 9911 3611. Where there are a large number of objectors with a common interest, the Panel may, in its absolute discretion, hear a representative of those persons.
Minutes of LCLPP meetings are published on Council’s website www.lanecove.nsw.gov.au as soon as possible following the meeting. If you have any enquiries or wish to obtain information in relation to LCLPP, please contact Council’s Office Manager – Environmental Services on 9911 3611.
Please note meetings held in the Council Chambers are Webcast. Webcasting allows the community to view proceedings from a computer without the need to attend the meeting. The webcast will include audio of members of the public that speak during the meeting. Please ensure while speaking to the Panel that you are respectful to other people and use appropriate language. Lane Cove Council accepts no liability for any defamatory or offensive remarks made during the course of these meetings.
The audio from these meetings is also recorded for the purposes of verifying the accuracy of the minutes and the recordings are not disclosed to any third party under the Government Information (Public Access) Act 2009, except as allowed under section 18(1) or section 19(1) of the PPIP Act, or where Council is compelled to do so by court order, warrant or subpoena or by any other legislation.
DECLARATIONS OF INTEREST
APOLOGIES
NOTICE OF WEBCASTING OF MEETING
Lane Cove Local Planning Panel Reports
1. 4 Northwood Road, Lane Cove NSW 2066
Lane Cove Local Planning Panel Meeting 29 October 2025
4 Northwood Road, Lane Cove NSW 2066
Item No: LPP21/25
Subject: 4 Northwood Road, Lane Cove NSW 2066
Record No: DA25/85-01 - 69448/25
Division: Planning and Sustainability Division
Author(s): Kirsten Picard
|
Property: |
4 Northwood Road, Lane Cove NSW 2066 |
|
DA No: |
DA85/2025 |
|
Date Lodged: |
11 August 2025 |
|
Cost of Work: |
$685,000.00 |
|
Owner: |
Pathways Property Group |
|
Applicant: |
ZIN Building Group c/o Glenn Wong |
|
Description of the proposal to appear on determination |
Proposed new grocery and liquor retail store, 7am – 10pm operation hours, access ramp to shop and outdoor signage. |
|
Zone |
BU1 Mixed Use |
|
Is the proposal permissible within the zone |
Yes |
|
Is the property a heritage item |
No |
|
Is the property within a conservation area |
No |
|
Does the property adjoin bushland |
No |
|
BCA Classification |
Class 2 |
|
Stop the Clock used |
No |
|
Notification |
The Application was advertised as per Lane Cove Council’s Notification Policy. The Application received 39 submissions for the proposed application. |
REASON FOR REFERRAL TO LANE COVE PLANNING PANEL
Referral to the Lane Cove Planning Panel is required as the development received more than 10 submissions whilst on public notification.
EXECUTIVE SUMMARY
· On 11 August 2025 Council received the subject development application which seeks consent for the proposed new IGA grocery and liquor retail store, the first Commercial Use Development Application proposed for the Pathways Development.
· The Application was notified in accordance with Council’s policy and received 39 submissions. The matters raised are addressed later in this report.
· The development application satisfies Section 4.15 of the Environmental Planning and Assessment Act 1979, including consideration against Council’s LEP, Council’s DCP and other relevant planning instruments.
SITE
4 Northwood Road, Lane Cove (the Site) is the site of the newly developed Pathways Development which is currently under construction. The Pathways Development provides for 142 private suites for a new residential aged care facility. In addition the lower levels are proposed to be fitted with commercial uses.
Located within the Northwood Village, the site is zoned as MU1 – Mixed Use and spans across a number of Lots identified as:
|
· Lot 1 DP 857133 · Lot 2 DP 857133 · Lot 4 DP 321048 · Lot 1 DP 663462 · Lot A DP 307899 · Lot G DP 307899 · Lot B DP 307899 |
· Lot C DP 307899 · Lot D DP 307899 · Lot 1 DP 445348 · Lot 2 DP 445348 · Lot A DP 370042 · Lot B DP 370042 · Lot D DP 370042 |
The Site is irregular in shape and has a total area of 5,003m2. The Site has a street frontage to Northwood Road/Longueville Road of approximately 104m and slopes down towards the east at approximately 7 degrees towards Lane Cove Golf Course and Gore Creek. The Sites surrounds are characterised by a range of commercial uses including shops and restaurants as well as residential properties comprising of mixed one and two storey dwelling houses.

Figure 1. 4 Northwood Road, Lane Cove (Source: NearMap 2025)
A detailed review of the site surrounds are provided below.
North
The site’s north is characterised by
residential apartment buildings and dwelling houses.
It is noted that the development at 266 Longueville Road (Amara Residences) by Pathways is located approximately 100m north of the site as the crow flies and is under construction. The Amara Residences is a seniors living apartment building and provides 92 Apartments comprising of two and three bedroom apartments.
Further North of the site are a mix of Residential dwelling types ranging from residential flat buildings to one and two storey residential dwelling houses.
East
The site’s east backs onto bushland before
proceeding towards the rear of Lane Cove Golf Course and the new Galuwa
Recreation Centre.
South
The site’s South/ South West runs parallel to
Northwood Road. Directly to the site’s South are residential dwelling
houses. On the south western side of Northwood road are commercial uses
including Porters Liquor, Trendsetter Travel and Jack And Co Northwood.
It is noted that 5 Northwood Road is currently a vacant block of land.
West
The Longueville Sporting Club, also known as
‘The Diddy’, is located to the site’s West.
Beyond the Sporting Club, the site is characterised by residential dwelling houses, a mix of one and two storey residential houses.
|
SITE IMAGES |
|
|
Figure 2. Proposed IGA - Internal façade facing north west |
Figure 3. Proposed IGA - Internal facade facing south west |
|
Figure 4. Proposed IGA - Internal facade facing west |
Figure 5. Proposed IGA - Internal facade facing south towards internal walkway |
|
Figure 6. Proposed IGA - Internal facade facing south towards internal walkway |
Figure 7. Proposed IGA - Internal facade facing north west |
|
Figure 8. Proposed walkway and ramp location for access to IGA. |
Figure 9. Proposed lift access to commercial lift to storage and waste room etc. |
|
Figure 10. Proposed IGA - Internal facade facing south |
|
SITE APPLICATION HISTORY
A Development Application for the redevelopment of the site was submitted in 2020 for the development of a Residential Aged Care Facility.
As per the original Development Application
(DA113/2020) associated with Pathways Development the following condition of
consent was included for the First Use and Fit-Out of commercial premises to
obtain a Development Application.
“3.
First Use and Fit-out of Commercial Premises:
Separate development applications are to be submitted for any first use and
fit-out of the ground floor commercial premises.
Reason: To enable a detailed assessment of
each future development application and its impacts.”
All applications on the site are provided below.
|
DA113/2020 |
Type of Work: Aged Persons Housing Applicant: Pathways Property Group Pty Ltd Application No.: 113/2020 Date Lodged: 28/08/2020 Determination Details: Sydney North Planning Panel Approval Determination Date: 21/04/2021
|
|
DA113/2020 |
Type of Work: Section 4.55 to a Residential Aged Care Facility Applicant: Pathways Property Group Pty Ltd Application No.: 113/2020 Date Lodged: 09/03/2023 Determination Details: S96 APPROVED STAFF Determination Date: 11/05/2023
|
|
DA113/2020 |
Type of Works: 4.55 Modification of consent Applicant: Pathways Property Group Pty Ltd Date Lodged: 14/06/2023 Determination Details: WITHDRAWN Determination Date: 27/07/2023
|
|
DA113/2020 |
Type of Works: 4.55 Modification of consent Applicant: Pathways Property Group Pty Ltd Date Lodged: 10/01/2024 Determination Details: S96 APPROVED STAFF Determination Date: 01/02/2024
|
|
DA113/2020 |
Type of Works: 4.55 Modification of consent Applicant: Pathways Property Group Pty Ltd Date Lodged: 16/04/2024 Determination Details: S96 APPROVED STAFF Determination Date: 24/04/2024
|
|
DA113/2020 |
Type of Works: 4.55 Modification to remove 2 trees & plant 4 new mature trees Applicant: Pathways Property Group Pty Ltd Date Lodged: 08/07/2024 Determination Details: S96 APPROVED STAFF Determination Date: 05/08/2024 |
PROPOSAL
|
The proposed development involves the internal fit-out of GL15, a vacant tenancy to establish a new retail premises for groceries. The works are primarily internal and do not involve any external structural alterations or changes to the building facade. The works involve installation of a new accessible ramp and steps outside the covered gallery in between the shops, and signage at the front of the building. The development seeks approval to sell liquor.
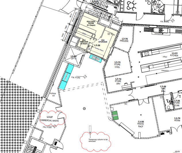
The fit-out includes the following: • Internal Layout: Layout of the grocery store with shelvings, fridges, cool room and checkout counters. • Finishes and Materials: White painted walls and Grey slip resistance floor tiles. • Signage: x2 under awning signage and glazing decal signage. • Accessibility: New accessible ramp and steps installed at new entry location accessing from the gallery. • Waste Management: Waste kept at the lower ground floor in the commercial waste room. Waste will be collected weekly with private waste contractor arrangements. • Hours of Operation: o IGA Super Market - Monday-Sunday: 7:00 AM - 7:00 PM (public holidays posted in advanced) o Liquor Store - Monday-Sunday: 7:00 AM - 7:00 PM (public holidays posted in advanced) • Staffing: o Approximately 12 staff total. § IGA Super Market: 4 – 7 rostered per shift. § Liquor Store: 2-3 rostered per shift. • Deliveries: Use of existing loading dock facilities located at Level 3.
*See following pages for Site Plans and Layouts. |
Approx area of
proposed IGA shop floor. Proposed Access
ramp to IGA. Proposed location
of Liquor Store


![]()


Figure 11.IGA and Liquor Store floor plan for internal fit out and associated ramp access.
Proposed IGA Storeroom Proposed Buildings commercial waste
room.




Figure 12. Proposed IGA Storage Room and waste room locations.
PROPOSAL DATA/POLICY COMPLIANCE
Local Environmental Plan 2009
Zoning: B1 Mixed Use Site Area:5,003m²
|
LEP table |
|||
|
|
Development Standard |
Proposal |
Complies |
|
Lane Use/ Zone Objectives |
Zone MU1 Mixed Use 1 Objectives of zone • To encourage a diversity of business, retail, office and light industrial land uses that generate employment opportunities. • To ensure that new development provides diverse and active street frontages to attract pedestrian traffic and to contribute to vibrant, diverse and functional streets and public spaces. • To minimise conflict between land uses within this zone and land uses within adjoining zones. • To encourage business, retail, community and other non-residential land uses on the ground floor of buildings. • To ensure the mixture of land uses are compatible. • To integrate development in accessible locations to maximise public transport patronage and encourage walking and cycling. • To maximise sunlight for surrounding properties and the public domain. |
The Proposal is for the first use of the commercial tenancy within the Pathways Development.
|
Yes. |
|
Height of Buildings (max) |
9.5m |
The Proposed built height will not change and remains compliant. |
Yes. |
Comprehensive Development Control Plan assessment
Part D: Commercial Development and Mixed Use Development
|
Provision |
Control |
Proposal |
Complies |
|
D.1 General Provisions |
|||
|
Front Setback |
3m |
No Change.
Front setback: 2-3m |
N/A. |
|
Rear Setback |
6m |
No Change.
Rear setback: Predominantly 10m with minor encroachments of the balcony and terrace areas, min 7.3m provided |
N/A. |
|
Side Setbacks |
6m |
No Change.
Side (south): Min 2.5m setback |
N/A. |
|
|
6m |
No Change.
Side (North): The proposal complies with the 6m setback. |
N/A. |
|
Car Parking |
The objective of this section is to reduce on-site car parking in proximity to public transport to facilitate use of public and alternative transport modes including walking and cycling. |
No Change.
86 car parking spaces: · 51 Commercial Spaces · 20 RACF staff spaces · 15 RACF visitor spaces 65 bicycle parking spaces and 6 motorcycle spaces.
|
N/A.
Traffic and Parking provisions have been further addressed within this report. |
|
Access and Mobility |
a) Any new development must comply with the relevant Australian Standards for Design for Access and Mobility, Adaptable Housing, Parking Facilities, Lifts, Escalators, Moving Walks and with Part F of this DCP – Access and Mobility. |
Ramps are proposed for internal floor layout of the proposed IGA. These have been designed in accordance with the relevant Australian Standard. |
Yes. |
|
D.5 Development within (MU1) Mixed Use Zone |
|||
|
5.3 Hours of Operation for Lighting |
a) External lighting operates, as a minimum requirement, from dusk until dawn on Thursday, Friday and Saturday nights, and from dusk until midnight on other nights. |
No proposed external lighting associated with the IGA. The application notes that the works are for proposed fit out and, will not alter the buildings external façade, building design or structural elements. |
Yes. |
|
b) Control to turn on at dusk is initiated by a suitably adjusted/calibrated photo-electric switch such that the lights will be at full output when the daylight luminance in the subject areas falls to the required illuminances stipulated. |
|||
|
5.4 Noise |
a) Noise generated by residents, visitors, retail or commercial part and mechanical plant and equipment should not exceed the following repeatable maximum L Aeq (1 hour) level, on weekdays: · Day 7am-6pm: 55dB(A) · Evening 6pm- 10pm: 45dB(A) · Night 10pm-7am: 40dB(A) and on weekends:
· Day 8am-7pm: 50dB(A) · Evening 7pm-10pm: 45dB(A) · Night 10pm-8am: 40dB(A) or in any case not more than 5 dB(A) above the background level during the day and evening and not exceeding the background level at night when measured at the boundary of the property |
The SEE states the following:
Construction Noise: Construction activities will be limited to standard working hours as stipulated by Lane Cove Council (e.g., 7:00 AM - 5:00 PM Monday to Friday, 8:00 AM - 1:00 PM Saturday, no work on Sundays or public holidays). All noisy works will be scheduled to minimise disruption to adjoining tenancies and any nearby residential properties. Best practice noise mitigation measures will be employed.
Operational Noise: The proposed retail use is not expected to generate excessive noise. Any internal noise, such as background music or customer conversations, will be contained within the premises. No noisy machinery or equipment is proposed that would impact the amenity of neighbouring properties or the public domain.
Comment:
It is understood that the proposed use would not negatively impact the noise and amenity of the surrounding area.
|
Yes. |
|
b) Incorporate noise reduction measures on plant and machinery. |
|||
|
c) Use design features or planning that will reduce noise |
|||
|
d) Incorporate adequate measures for tonal, low frequency, impulsive, or intermittent noise. |
|||
|
5.5 Non residential facilities |
a) Provide a variety of different sized non-residential spaces (eg. showrooms, boutique shops and cafes, suites for medical/legal centres). |
The proposed IGA will occupy one of the commercial area spaces dedicated within the Pathways Development. |
Yes. |
|
b) Provide a variety of outdoor and indoor communal spaces (such as gymnasium, pool and meeting rooms for residents; gardens, seating or outdoor café space for the public). |
N/A. |
N/A. |
|
|
c) Consider incorporating community and entertainment facilities (such as a child care centre) depending upon the size of the development and its location. |
N/A. |
N/A. |
|
|
d) Common areas for residents should have natural light, should not be located in basement and should have at least 75% of area of the communal space in form of internal room, remainder appropriately located in the external recreation area. |
N/A. |
N/A. |
|
|
e) All common areas (including the principal entrance to the building) should be accessible by all people. |
The site provides an accessible entrance from within the building and from the street. |
Yes. |
|
|
5.6 Access, entries and servicing |
a) Separate commercial service requirements, such as loading docks, from residential access, servicing needs and primary outlook. |
The site has a shared driveway access for trucks etc which are to provide deliveries to the site. There are varied levels of basement parking which would restrict access for commercial purposes. |
Yes. |
|
b) Locate clearly demarcated residential entries directly from the public street. |
N/A. |
Yes. |
|
|
c) Clearly separate and distinguish commercial and residential entries and vertical circulation. |
Clear signage is proposed for the site to assist way finding within and around the IGA for customers. |
Yes. |
|
|
d) Provide security access controls to all entrances into private areas, including car parks and internal courtyards. |
N/A. |
N/A. |
|
|
e) Provide safe pedestrian routes through the site. |
Pedestrian access is accessible through out the site. |
Yes. |
|
Part D: Commercial Development and Mixed-Use Localities
The site is located within Locality 2 – Northwood Neighborhood Centre. Relevant planning objectives of this section of the DCP have been considered in the table below.
Works will not alter or impact the external façade of the building to which the IGA is proposed to be located within.
|
Provision |
Control |
Proposal |
Complies |
|
Locality 2 – Northwood Neighborhood Centre |
|||
|
9. Desired Future Character |
Objectives
1. To create a high quality, vibrant and pleasant centre to serve local residents needs. 2. To prohibit large retail outlets requiring a larger floor area (max. 400m2 as per LEP) such as major supermarkets, discount department stores, hardware or other retail that would compete directly with Lane Cove Village. 3. To improve the pedestrian connectivity and amenity of the local centre. 4. To concentrate pedestrian and resident based retailing to Kenneth Street. 5. To improve bicycle access to this area, and encourage walking and cycling. 6. To provide a high quality landscaped public domain for the new centre. 7. To mitigate against the impact of traffic noise and movement from River Road and Northwood Road on the local centre. 8. To fully integrate Central Park into the local centre as the main public open space area and encourage establishment of cafe uses and seating opportunities co-located with the park and play areas. 9. To encourage upgrading of the park to improve its facilities for children and older residents. 10. To provide the opportunity for outdoor seating and dining in a pleasant neighbourhood environment. |
Given the site’s context and proposed use the objectives are met. A discussion of the relevant future character has been discussed below.
The proposed works are for the fit out of a designated commercial area within the Development.
The IGA is considered appropriate within the building as it allows for a new commercial use.
The Site has been designed to have pedestrian connectivity within and around the site which improves and encourages walking and cycling. |
Yes. |
|
10. Controls for 4-18 Northwood Road & 274-274A Longueville Road, Lane Cove |
Desired Future Character Objectives
1. To provide opportunities for residential aged care facilities in the centre with connection to the community, family and existing friends. 2. To respond to the 'grain' of the existing lot pattern in any development. 3. To achieve appropriate amenity for existing and future residents within and adjoining the centre area. 4. To achieve design excellence. |
The proposed IGA will provide an additional service for the residential aged care facilitie’s staff and family members in addition to benefits for the wider community. It is considered that this is an appropriate amenity for the community and the adjoining center area. |
Yes. |
|
Site Planning Objectives
1. To promote opportunities for medium scale mixed use development to create definition to the centre, including commercial uses that primarily cater to the needs of people who live and work in the surrounding neighbourhood. 2. To achieve an appropriate height transition to adjacent low scale residential uses. 3. To create a high-quality urban space that retains a pedestrian scale and minimises shadowing on surrounding buildings. 4. For development to follow the natural topography of the land. 5. For drainage to ensure protection of the downslope soil, native vegetation and landscape in the adjacent reserve. 6. To incorporate sustainability measures into the development such as solar panels and natural ventilation, permeable street pavers, green roofs, cools roofs and integrated air conditioning, and retention/expansion of adjoining bushland and tree canopy |
The proposed development is for the fit out of a commercial space to allow for a new IGA and associated liquor store.
The proposed IGA would be beneficial and meet the needs of the community who live and work within the surrounding area. |
Yes. |
|
Part N – Signage and Advertising
*It is noted that the site will have window signage. While there are no specific provisions for window signage within the Northwood area, the provisions from the Lane Cove Village have been adopted as a guide to assess the proposed window signage sought as part of this Development Application.
|
Provision |
Control |
Proposal |
Complies |
|
N2. Background |
|||
|
2.1.3 Location and Design of Signage and Advertising |
All signage and advertising proposed is to be designed and located to consider the following matters:
a) ensure the façade of a
building is not cluttered with signage and that the portion of any building
above an awning is generally free of signage;
|
Minimal signage proposed. It is noted that the proposed signage is well designed and is relevant to the business. |
Yes. |
|
b) that signage is well designed, complementary to the architecture on which the signage is to be erected, in terms of materials, finishes, colours and ensure that architectural features of a building are not altered or obscured; |
Design and colour theme are consistent with IGA branding. Signage is proposed to be located under awning and on glazing. No architectural features are obscured.
|
Yes. |
|
|
c) consideration of existing signage on a building, land and streetscape to ensure that the new signage does not result in visual clutter or overcrowding of signage; |
Proposed signage does not clutter, overcrowd or adversely and/or visual impact the building. |
Yes. |
|
|
d) consideration of the viewing angles of signage, visibility from the street level and nearby buildings;
|
Considered appropriate. |
Yes. |
|
|
e) that proposed signage does not unduly obstruct viewing angles to existing approved signage; |
Proposed signage does not obstruct other signage. |
Yes. |
|
|
f) signage which is supported from, hung from or placed on other signs will not be supported; |
N/A. |
N/A. |
|
|
g) all proposals must detail the contents of the signage and advertisements in English, regardless of other content/languages used; |
All Signs are in English. |
Yes. |
|
|
h) where a logo is sought as part of a sign or advertisement in addition to the written component (as part of the contents), it will be necessary to demonstrate the need for the logo; and
|
Logos, branding and wording are reflective of IGA branding.
|
Yes. |
|
|
i) whether proposed signage is appropriate in relation to the desired future character of the precinct in which it is proposed to be located, see Section 2.2 “Character Statements”.
|
N/A. The Site is not located within an area with a future desired character. |
N/A.
|
|
|
N.3 General Signage Controls |
|||
|
Window Signage |
|||
|
3.1.1 Window Signage |
· Window signage is to have a maximum coverage of 25% of the area of the shop window fronting a public area, or visible from a public area. Refer to figure 3.2.
|
Total window signage coverage will be less than 25% coverage. |
Yes. |
|
· Window signage is to be primarily for the purposes of business identification signage and may also include the hours of operation of the business and a minimum of second party signage. As such, the business identification sign must form the majority of the window signage. Third party signage is not appropriate.
|
All signage proposed are IGA signs are business identification signs. |
Yes. |
|
|
· Sign structures which are located behind the window and are not directly affixed to the window are to be included for the purposes of calculating the window coverage if the structure’s predominant purpose is for an advertising display to be viewed through the shopfront.
|
N/A. |
N/A. |
|
|
· Goods sold within the premises which are displayed in the shopfront do not count towards the window coverage calculation.
|
N/A. |
N/A. |
|
|
3.3.1 Under awning signage (all locations) |
· Under awning signs are permitted in all areas where there are awnings, except in St Leonards, where the ground floor use is not a street activating use (e.g. a retail or cafe use).
|
N/A. |
N/A. |
|
· Under awning signage is to be located at a consistent height from the footpath and of a similar size to the predominant type of under awning sign in the area which it is located. The sign is to be located so as not to affect pedestrian safety or road users.
|
Proposed to be attached to the underside of the awning of the Pathways Development.
It is considered that the signs would not negatively impact pedestrian safety or road users. |
Yes. |
|
|
· One under awning sign is permitted per building. Where a building has more than one frontage, an under awning sign may be permitted at each, located approximately in the middle of the frontage. Under awning signs are to be a minimum of 3m apart to ensure that each sign is visible for pedestrians on the footpath. Signage is not to extend beyond the edge of the awning.
|
Two under awning signs are proposed at approximately 10m apart and considered acceptable. |
Yes. |
|
|
· The maximum dimensions of an under awning sign are to be 2.5m W x 0.4m H x 0.15m D.
|
Proposed dimensions of the proposed sign: 1.0m wide x 0.41m high x 0.2m deep |
Yes. |
|
|
· Where there is no awning, a projected wall sign of a similar size is permitted at a height of a typical awning (minimum of 2.7m from the ground below).
|
N/A. |
N/A. |
|
|
3.4 Awning Signage (All locations) |
· Awning signage is to be contained entirely within the dimensions of the awning and tenancy on which it is located and a maximum of 500mm high.
|
The signage is within the fascia. |
Yes |
|
· The content of awning signage is to be first party signage only. |
The sign is a identification sign for the IGA. |
Yes. |
|
REFERRALS
Traffic Assessment Officer
Council’s Traffic Officer reviewed the documentation including the addition traffic advice letter which was issued as part of the Council issued RFI.
The following comments were made:
The IGA has a GFA of 310m2. According to Traffic Report from Mclaren 18 August 2020, only 8 spaces are required (minimum one disabled space).
The applicant of the IGA has allocated 19 spaces according to the SEE.
I note that the excerpt below, shows all the parking rates approved as part of the original DA.

The total commercial GFA is estimated to be 2051m^2, which equates to 51 spaces required.
The IGA has provided for a sufficient amount of car parking spaces as approved from the original DA.
No objections raised subject to recommended draft conditions.
TfNSW -
Reference is made to Council’s referral regarding the abovementioned Development Application (DA) which was referred to Transport for NSW (TfNSW) for comment under Section 2.119 of the State Environment Planning Policy (Transport and Infrastructure) 2021.
TfNSW notes that Northwood Road, at this location, is a 2000 series regional classified road under the care and control of Council. As such, TfNSW has no requirements as the proposed development will not have a significant impact on the classified road network.
No objections raised subject to recommended draft conditions.
Assessment - Environmental planning and assessment act 1979
provisions of any lep, dcp, SEPP or regulation (Section 4.15(1)(a))
The proposal is permissible and does not raise any issues in regard to the Lane Cove Local Environmental Plan 2009.
The Floor Space Ratio of the development remains unchanged. The Height of the development remains unchanged.
Other Planning Instruments
State Environmental Planning Policy (Resilience and Hazards) 2021
The subject site and adjoining sites are zoned for Mixed Use and comprise of residential and commercial purposes. Given the types of uses permissible within the residential zones, it is unlikely that the site would be contaminated.
State Environmental Planning Policy (Industry & Employment) 2021
Advertising and Signage Chapter 3 establishes provisions for advertising and signage across NSW noting that signage is to be of a high quality, provides effective communication and be compatible with the desired character of an area.
The proposed business identification signage is considered similar and comparable with other commercial signage within the locality.
An assessment against Schedule 5 Assessment Criteria has been undertaken.
Schedule 65 Assessment Criteria –
|
Assessment Criteria |
Comments |
|
1 Character of the area |
|
|
Is the proposal compatible with the existing or desired future character of the area or locality in which it is proposed to be located? |
Yes. The proposed signage is for the proposed IGA shopfront. |
|
Is the proposal consistent with a particular theme for outdoor advertising in the area or locality? |
N/A. |
|
2 Special areas |
|
|
Does the proposal detract from the amenity or visual quality of any environmentally sensitive areas, heritage areas, natural or other conservation areas, open space areas, waterways, rural landscapes or residential areas? |
No. The proposed signage would not negatively impact amenity of the surrounding area of the site. |
|
3 Views and vistas |
|
|
Does the proposal obscure or compromise important views? |
No. |
|
Does the proposal dominate the skyline and reduce the quality of vistas? |
No. |
|
Does the proposal respect the viewing rights of other advertisers? |
Yes. |
|
4 Streetscape, setting or landscape |
|
|
Is the scale, proportion and form of the proposal appropriate for the streetscape, setting or landscape? |
Yes. |
|
Does the proposal contribute to the visual interest of the streetscape, setting or landscape? |
N/A. |
|
Does the proposal reduce clutter by rationalising and simplifying existing advertising? |
The signage is for a new IGA as part of the Pathways Development. No signage currently exists on the site. |
|
Does the proposal screen unsightliness? |
N/A. |
|
Does the proposal protrude above buildings, structures or tree canopies in the area or locality? |
No. |
|
Does the proposal require ongoing vegetation management? |
No. |
|
5 Site and building |
|
|
Is the proposal compatible with the scale, proportion and other characteristics of the site or building, or both, on which the proposed signage is to be located? |
Yes. Signage and sizing are compatible with the site. |
|
Does the proposal respect important features of the site or building, or both? |
Yes. |
|
Does the proposal show innovation and imagination in its relationship to the site or building, or both? |
Yes. |
|
6 Associated devices and logos with advertisements and advertising structures |
|
|
Have any safety devices, platforms, lighting devices or logos been designed as an integral part of the signage or structure on which it is to be displayed? |
The proposed signage represents the branding of IGA. |
|
7 Illumination |
|
|
Would illumination result in unacceptable glare? |
N/A. |
|
Would illumination affect safety for pedestrians, vehicles or aircraft? |
N/A. |
|
Would illumination detract from the amenity of any residence or other form of accommodation? |
N/A. |
|
Can the intensity of the illumination be adjusted, if necessary? |
N/A. |
|
Is the illumination subject to a curfew? |
N/A. |
|
8 Safety |
|
|
Would the proposal reduce the safety for any public road? |
No. |
|
Would the proposal reduce the safety for pedestrians or bicyclists? |
No. |
|
Would the proposal reduce the safety for pedestrians, particularly children, by obscuring sightlines from public areas? |
No. |
APPLICABLE REGULATIONS
The Environmental Planning and Assessment Regulation 2021 indicates that the standards for demolition and removal of materials should meet with AS 2601-2001 and therefore any consent would require the application of a relevant condition seeking compliance with this standard.
IMPACTS OF DEVELOPMENT (Section 4.15(1)(b))
The proposal would not adversely impact neighbouring properties or the public domain in terms of overshadowing, visual privacy, acoustic privacy, or traffic and parking. The proposal presents a development outcome that is consistent with the objectives of the relevant planning controls.
SUITABILITY OF SITE (Section 4.15(1)(c))
The subject site would be suitable for the proposed development as the proposed use is permissible within the Zone. The proposed development would positively contribute to the amenity of the surrounding area.
RESPONSE TO NOTIFICATION (Section 4.15(1)(d))
During the 16-notification period a total of 39 submissions were lodged, 36 of these submissions were from individual submitters. It is noted that some submissions were resubmitted more than once.
The following provides a response to the
|
|
Concern |
Comment |
|
Traffic |
A number of concerns regarding Traffic were raised, these concerns included the following: · Parking · Traffic Flow/ Volume of Traffic · Pedestrian Safety · Requested independent traffic study
|
A number of concerns regarding Traffic were raised during the notification period. Primarily concern arose as the proposed fit out of the IGA and Liquor store was not accompanied by an updated Traffic and Parking Study for the proposed woks.
It was noted that a Traffic and Parking Study was undertaken as part of the original Development Application to which McLaren Traffic Engineering provided a detailed Traffic and Parking Study dated August 2020.
Council requested that the applicant provide a new updated Traffic and Parking Study which reviewed the traffic and parking impacts the proposed IGA will have on the surrounding traffic network.
The Applicant issued a Traffic and Parking Assessment Advice for the proposed new IGA and liquor retail fit-out dated 26 September 2025.
The Traffic and Parking Assessment Advice prepared by McLaren Traffic Engineering details a response that refers back to the original Traffic and Parking Assessment Advice which was undertaken for the original Pathways Development. Comments from the assessment advice are as follows:
· That August 2020 traffic and parking impact assessment report considered the impact of a six-storey development that comprised a residential aged care facility containing 143 beds and a ground floor commercial premises of 2,051m2 (GFA) with on-site parking for 86 car parking spaces.
· That August 2020 report also included car parking compliance and swept path analysis for waste and delivery vehicles up to 8.8m in length, known as a Medium Rigid Vehicle (MRV) under As2890.2:2018.
· The subject IGA (new grocery & liquor retail) fit out is contained within a tenancy area of 308m2, comprising 260m2 of main IGA grocery floor area and 48m2 of liquor store. These areas are very small for a ‘supermarket’ and indeed would not attract any greater traffic generation levels, car parking demand or service vehicle traffic activity than that assessed in the 18 August 2020 MTE Traffic and Parking Impact Assessment. Councils Traffic Officer has undertaken a review of all documentation provided and concluded that the proposed parking rates are still relevant and compliant with relevant controls.
Further, as stated above the proposed driveway and basement parking has been designed to allow for delivery vehicles to enter and exit the site safely. This would have been considered within the Development Application lodged for the Pathways Development. |
|
Proposed use as a commercial premises |
Submissions were received regarding the proposed use as a commercial IGA and liquor store. Themes of the comments raised include: · Aged Care Facility · Proposed liquor Shop Concerns · Oversight · Additional Aged Care rooms · Change to local amenity and character · Delivery vehicles |
A number of submissions were received which noted that the proposed use of the commercial space as an IGA and Liquor store was inappropriate given the sites primary purpose is for a residential aged care.
Comments were mainly focused on the proposed liquor store with many submitters stating it was not appropriate, and it is an oversight for the primary purpose of the site.
It is noted that the liquor store is to only occupy a small portion of the commercial floor space and can only be accessed via the IGA. Further, a number of IGA super markets are fitted with a liquor store portion and it is therefore not inappropriate for the proposed IGA store.
The proposed use will not change the character of the area as it intends to improve the sites amenity and accessibility for a range of demographics. |
|
Existing Service Stores within the area |
Submissions note the existing convenience and liquor stores within the vicinity. Concerns raised were as follows: · Existing Porters/ Liquor License · Existing convenience store - Jack & Co BP Service Station |
Porters and Jack & Co BP Service Station are located on the southern side of Northwood Road.
The IGA and liquor store would be within one shop front and located on the eastern side of Northwood Road. It is noted that the proposed IGA would provide a more convenient and accessible service to residence and community members located on the east of Northwood Road if they wish to shop at IGA. Further, the proposed IGA will benefit the local community assisting preparedness for future growing and demand within the area. |
|
Operation of IGA and Liquor |
Concerns raised were as follows: · Hours of Operation · Signage |
A detailed Operational management plan has been provided to Council.
Within this plan details of the IGA’s operational hours, staffing rates, waste management etc have all been satisfactorily addressed.
Proposed signage specifications have also
been detailed within the Statement of Environmental Effects and discussed
within this report. |
PUBLIC INTEREST (Section 4.15(1)(e))
The proposal would not have an unreasonable impact on neighbouring properties or the public domain with regard to the Lane Cove LEP 2009, Lane Cove DCP 2009 or any other environmental planning instruments. Therefore, approval of this application would not be contrary to the public interest.
CONCLUSION
The matters in relation to Section 4.15 of the Environmental Planning and Assessment Act 1979 have been satisfied.
The Height and FSR development standard of the Lane Cove LEP 2009 remains unchanged.
The application generally meets with the following Lane Cove Council Development Control Plan 2099 Sections:
· Part D: Commercial Development and Mixed-Use Development
· Part D: Commercial Development and Mixed-Use Localities
· Part N: Signage and Advertising
On balance as the proposed development would be reasonable it is therefore recommended for approval for the proposed retail fit-out at the Site.
|
That the Lane Cove Planning Panel at its meeting of 29 October 2025, exercising the functions of Council as the Consent Authority pursuant to Section 4.16 of the Environmental Planning and Assessment Act 1979 grant consent to Development Application DA85/2025 for the proposed internal commercial floor fit-out for a new IGA and associated liquor store subject to the attached conditions.
|
||||||||||||||||||||||||||
|
General Conditions
You are advised that: · Development Application DA85/2025 · For the proposed internal fit out of commercial floor area to be an IGA and liquor store · On 4 Northwood Road, Northwood Subject to the following conditions:
1. A.1 - Approved plans and supporting documentation Development must be carried out in accordance with the following approved plans and supporting documentation (stamped by Council), except where the conditions of this consent expressly require otherwise.
In the event of any inconsistency between the approved plans and the supporting documentation, the approved plans prevail. In the event of any inconsistency between the approved plans and a condition of this consent, the condition prevails.
Note: an inconsistency occurs between an approved plan and supporting documentation or between an approved plan and a condition when it is not possible to comply with both at the relevant time.
Reason: To ensure all parties are aware of the approved plans and supporting documentation that applies to the development.
2. A.12 – Construction Certificate The submission of a Construction Certificate and its issue by Council or Principal Certifier PRIOR TO CONSTRUCTION WORK commencing.
Reason: To ensures the detailed construction plans and specifications comply with the requirements of the Building Code of Australia (BCA) and any relevant Australian Standard.
3. A.14- Hours of Operation Approval is granted for the IGA and Liquor Store to operate at the following times; · IGA Super Market – o Monday-Sunday: 7:00 AM - 7:00 PM (public holidays posted in advanced) · Liquor Store – o Monday-Sunday: 7:00 AM - 7:00 PM (public holidays posted in advanced) Reason: Consistent with the zonal objectives.
PART C - BEFORE THE ISSUE OF A CONSTRUCTION CERTIFICATE
4. C.1 - Construction site management plan Prior to any demolition works and before the issue of a construction certificate, the applicant must ensure a construction site management plan is prepared before it is provided to and approved by the certifier. The plan must include the following matters: · safety barrier or temporary fencing is to be provided along the full frontage of the property. This fence is for the safety of pedestrians on the public footpath and shall be erected before the commencement of any works. · provisions for public safety · pedestrian access, including disabled and pram access, is to be maintained throughout the course of the construction as per AS-1742.3, ’Part 3 - Traffic control devices for works on roads’. · pedestrian and vehicular site access points and construction activity zones
Reason: To require details of measures that will protect the public, and the surrounding environment, during site works and construction.
5. C.4 - Utilities and services Before the issue of the relevant construction certificate, the applicant must submit the following written evidence of service provider requirements to the certifier: a) a letter of consent from electricity supplier demonstrating that satisfactory arrangements can be made for the installation and supply of electricity. b) a response from Sydney Water as to whether the plans proposed to accompany the application for a construction certificate would affect any Sydney Water infrastructure, and whether further requirements need to be met. c) other relevant utilities or services - that the development as proposed to be carried out is satisfactory to those other service providers, or if it is not, what changes are required to make the development satisfactory to them.
Reason: To ensure relevant utility and service providers requirements are provided to the certifier.
6. C.19.EH - Construction and fit-out of food premises To ensure that adequate provision is made for the cleanliness and maintenance of all food preparation areas, the construction and fit-out of any food premises must comply with the following: i) The Food Act 2003 (as amended); ii) Food Regulation 2015 (as amended); iii) Australia and New Zealand Food Standards Code; iv) Australian Standard AS 4674 – 2004 (Design, construction and fit-out of a food premises); v) Sydney Water – trade Waste Section; vi) The Protection of the Environment Operations Act 1997; and vii) The Building Code of Australia. A certificate of compliance with (iv) for the proposed kitchen design shall be submitted to the Principal Certifying Authority, prior to issuing the relevant Construction Certificate.
Reason: To ensure food preparation areas meet the relevant requirements
PART E - WHILE BUILDING WORK IS BEING CARRIED OUT
7. E.1.A - Hours of Work
The principal certifier must ensure that building work, demolition or vegetation removal is only carried out between: Monday to Friday (inclusive) 7.00am to 5.30pm Saturday 7.00am to 4.00pm
With NO high noise generating activities, to be undertaken after 12 Noon on Saturday.
A Notice/Sign showing permitted working hours and types of work permitted during those hours, including the applicant’s phone number, project manager or site foreman, shall be displayed at the front of the site.
The principal certifier must ensure building work, demolition or vegetation removal is not carried out on Sundays and public holidays, except where there is an emergency.
Reason: To protect the amenity of the surrounding area.
8. E.2 - Compliance with the Building Code of Australia Building work must be carried out in accordance with the requirements of the Building Code of Australia.
Reason: Prescribed condition - EP&A Regulation clause 98(1)(a)
9. E.4 - Implementation of the site management plans While vegetation removal, demolition and/or building work is being
carried out, the applicant must ensure the measures required by the approved
construction site management plan and the erosion and sediment control plan
are implemented at all times.
Reason: To ensure the required site management measures are implemented during construction.
10. E.7 - Construction noise While building work is being carried out and where no noise and vibration management plan is approved under this consent, the applicant is to ensure that any noise caused by demolition, vegetation removal or construction does not exceed an LAeq (15 min) of 5dB(A) above background noise, when measured at any lot boundary of the property where the construction is being carried out.
Reason: To protect the amenity of the neighbourhood.
11. E.9 - Responsibility for changes to public infrastructure While building work is being carried out, the applicant must pay any costs incurred as a result of the approved removal, relocation or reconstruction of infrastructure (including ramps, footpaths, kerb and gutter, light poles, kerb inlet pits, service provider pits, street trees or any other infrastructure in the street footpath area).
Reason: To ensure payment of approved changes to public infrastructure.
12. E.18.B - No obstruction of public way The public way must not be obstructed by any materials, vehicles, refuse, skips or the like, under any circumstances. Non-compliance with this requirement will result in the issue of a notice by Council to stop all work on site.
Reason: To ensure public safety.
13. E.19.B – Encroachments 1. No portion of the proposed structure shall encroach onto the adjoining properties. 2. The proposed construction shall not encroach onto any existing Council stormwater line or drainage easement unless approved by Council. 3. No encroachment is to occur into public open space.
Reason: To ensure works are contained wholly within the subject site
PART F - BEFORE THE ISSUE OF AN OCCUPATION CERTIFICATE
14. F.2 - Completion of public utility services Before the issue of the relevant occupation certificate, the principal certifier must ensure any adjustment or augmentation of any public utility services including gas, water, sewer, electricity, street lighting and telecommunications, required as a result of the development, is completed to the satisfaction of the relevant authority.
Before the issue of the occupation certificate, the certifier must request written confirmation from the relevant authority that the relevant services have been completed.
Reason: To ensure required changes to public utility services are completed, in accordance with the relevant agency requirements before occupation.
15. F.5 - Repair of infrastructure Before the issue of an occupation certificate, the applicant must ensure any public infrastructure damaged as a result of the carrying out of building works (including damage caused by, but not limited to, delivery vehicles, waste collection, contractors, sub-contractors, concreting vehicles) is fully repaired to the written satisfaction of Council, and at no cost to Council.
Note: If the council is not satisfied, the whole or part of the bond submitted will be used to cover the rectification work.
Reason: To ensure any damage to public infrastructure is rectified.
16. F.6 - Removal of waste upon completion Before the issue of an occupation certificate, the principal certifier must ensure all refuse, spoil and material unsuitable for use on-site is removed from the site and disposed of in accordance with the approved waste management plan. Written evidence of the removal must be supplied to the satisfaction of the principal certifier.
Before the issue of a partial occupation certificate, the applicant must ensure the temporary storage of any waste is carried out in accordance with the approved waste management plan to the principal certifier’s satisfaction.
Reason: To ensure waste material is appropriately disposed or satisfactorily stored.
17. F.13.EH - Outdoor lighting Outdoor lighting shall comply with Australian Standard AS 4282-1997 – Control of the obtrusive effects of outdoor lighting. Where sites adjoin bushland, all outside lighting must be appropriately baffled to minimise light pollution into the bushland area. Native plantings may be used to absorb lighting.
Reason: To protect the amenity of nearby residential properties
18. F.18.EH - Waste collection / deed of indemnity Prior to the issue of any Occupation Certificate, the applicant is to complete Council’s Deed of Indemnity for its waste contractor to enter the premises to collect waste and recycling.
This is to be submitted to Council at least forty (40) days, prior to any occupation of the building.
Reason: To manage risk to any Council infrastructure.
PART H - OCCUPATION AND ONGOING USE
19. H.6 – Food premises (ongoing use) On-going operation of any food premises is to be maintained in accordance with: i) the Food Act 2003 (as amended), ii) Food Regulation 2015 (as amended), iii) the Food Standards Code as published by Food Standards Australia & New Zealand, iv) Australian Standard AS 4674-2004: Construction and fit out of food premises (as amended), v) Sydney Water Corporation – Trade Waste Section, and vi) The Protection of the Environment Operations Act 1997.
Reason: To satisfy Council’s Engineering requirements. To ensure food and health safety
|
|||||||||||||||||||||||||